Skip navigation

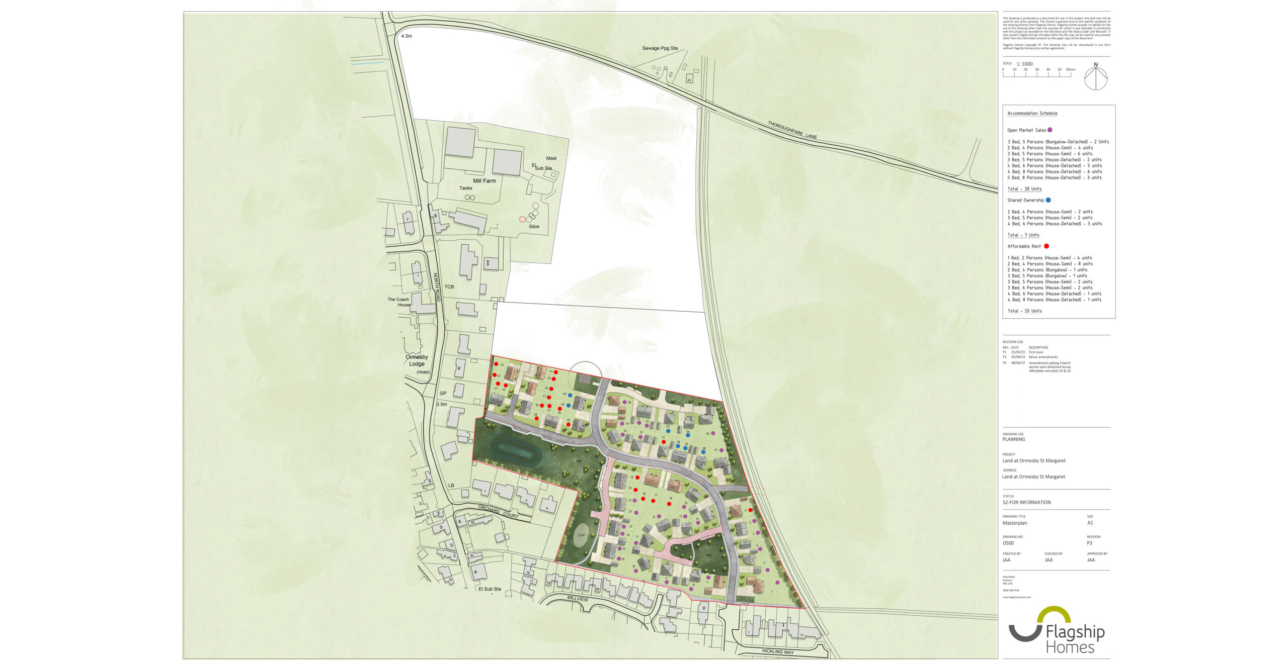
Land off Barton Way, Ormesby

  • Acres

    23.2

  • Local Authority

    Great Yarmouth District

  • Parish

    Ormesby St Margaret with Scratby

  • Status

    In Planning

This site is located to the northern edge of the Ormesby village boundary. The planning permission is for 55 dwellings with associated infrastructure.